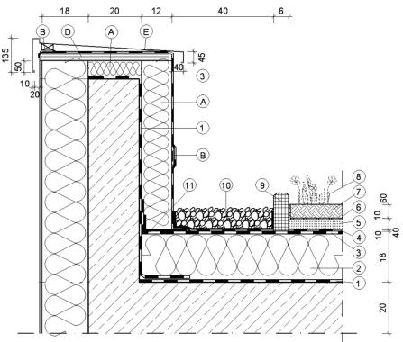
Flachdachaufbau im Detail

Aufbau des Flachdaches

1.  Dampfsperre

2.   Dämmung  180mm

3.   Polymer Abdichtungsbahn

4.   Schutzlage aus Gummischrot

      10mm

5.    Dränschicht,  40mm

6.    Filterschicht,  10mm

7.    Vegetationsschicht,  60mm

8.    Extensive Begrünung

9.    Betonrandstein, Höhe 150mm,

       Dicke 60mm auf Abstandshaltern

       15mm,  

10.  Schutzstreifen aus gewaschenen

      Kies Korngrösse 16/32,  100mm

11.  Verbundblech-L-Winkel

      60/160mm

Aufbau der Dachrandkonstruktion

A.  Dämmung                                                     

          120mm

B.   Verbundblech zur Zwischenfixierung,

      Streifenhöhe  60mm in mittlerer Höhe

C.    Druckfeste Dämmplatte

  

            60mm

D.    Holzwerkstoffplatte, Breite

                                    320mm

E.      Dachrand-Abdeckung, 2-teilig, Serienprofil

Dämmung

Vegetationsschicht

Stahlbeton

Dränschicht

Filterschicht

Betonrandstein

Gebäudehülle Gebäudehülle
Besucherzaehler